Open huis: 31 oktober 19:30 - 20:30
Nieuw in verkoop:Sint Camillusstraat 9, 6045 ES Roermond - Foto
Nieuw in verkoop
+26

Sint Camillusstraat 9 6045 ES Roermond € 250.000,- k.k.

  • Appartement
  • 4 kamers
  • 3 slaapkamers
  • 1 badkamers
  • Bouwjaar 1964
  • 91 m² gebruiksoppervlakte
  • F Energielabel F

Beschrijving

Bezichtigingsmomenten:
- Vrijdag 31 oktober van 19h30 tot 20h30;
- Maandag 3 november van 19h30 tot 20h30.

Zeer ruim, instapklaar, appartement, maisonnette. Het appartement beschikt over 2 woonlagen met een ruime woonkamer, gesloten keuken met inbouwapparatuur, 3 slaapkamers, 2 balkons en een ruime berging in het souterrain. Het appartement is gelegen in een kleinschalig complex op een centrale locatie aan de rand van Roermond en op loopafstand van het centrum van Roermond.

Indeling:

Souterrain:
Ruime privé kelderberging.

Begane grond:
Centrale entree met brievenbussen, bellenplateau, hal en trappenhuis.

Tweede verdieping:
Gezamenlijke galerij.

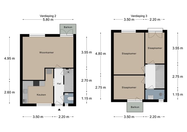
Entree/hal (3,85 x 1,1 m) v.v. laminaat, alwaar trapopgang naar derde verdieping en berging onder trapopgang.
Half betegelde toiletruimte (1,15 x 1,05 m) met fonteintje.
L-vormige woonkamer (5,8 x 4,95/3,55 m) v.v. laminaat en toegang tot balkon achterzijde gebouw (1,95 x 1,2 m).
Gesloten keuken (3,5 x 2,6 m) v.v. laminaat en een moderne hoek opstelling met de volgende inbouw apparatuur: inductie kookplaat, oven, afzuigkap en vrijstaande koel-/vriescombinatie, alwaar aansluiting wasautomaten.

Derde verdieping:
Overloop (2,75 x 1,1 m) v.v. laminaat.
Slaapkamer 1 (4,8 x 3,5 m) v.v. laminaat.
Slaapkamer 2 (3,5 x 2,75 m) v.v. laminaat, alwaar toegang tot balkon voorzijde gebouw (1,95 x 1,3 m).
Slaapkamer 3 (3,55 x 2,2 m) v.v. laminaat, alwaar frans balkon aan achterzijde gebouw.
Geheel betegelde badkamer (2,2 x 1,15 m) uitgerust met inloopdouche en wastafel met meubel.

Algemeen:
Het betreft een zeer ruim, grotendeels gestoffeerd, appartement gelegen in een net, kleinschalig, complex. Het gehele appartement is in 2019 gerenoveerd, waarbij nagenoeg alles is vernieuwd en geschilderd. De gehele woning is voorzien van kunststof kozijnen met dubbele beglazing. HR cv combi-ketel (2019). Energielabel F. Het appartement is zeer ruim en biedt vele mogelijkheden.

Kortom een instapklaar, zeer ruim, geheel gerenoveerde maisonnette gelegen op een centrale locatie aan de rand van Roermond.

Wenst u meer informatie of een bezichtiging? Neem dan contact met ons op.

Kaart

Kenmerken

Overdracht

Referentienummer
151
Vraagprijs
€ 250.000,- k.k.
Servicekosten
€ 138,-
Status
Nieuw in verkoop
Aanvaarding
In overleg
Aangeboden sinds
Dinsdag 28 oktober 2025

Bouw

Type object
Appartement, maisonnette
Woonlaag
2e woonlaag
Soort bouw
Bestaande bouw
Bouwperiode
1964
Isolatievormen
Dubbel glas

Oppervlaktes en inhoud

Woonoppervlakte
91 m²
Woonkameroppervlakte
28,71 m²
Keukenoppervlakte
9,1 m²
Inhoud
310 m³
Oppervlakte externe bergruimte
9 m²
Oppervlakte gebouwgebonden buitenruimte
5 m²
Balkonoppervlakte
4,88 m²

Indeling

Aantal bouwlagen
2
Aantal kamers
4 (waarvan 3 slaapkamers)
Aantal badkamers
1 (en 1 apart toilet)

Energieverbruik

Energielabel
F

CV ketel

CV ketel
HR cv combi-ketel
Warmtebron
Gas
Bouwjaar
2019
Combiketel
Ja
Eigendom
Eigendom

Uitrusting

Warm water
CV-ketel
Verwarmingssysteem
Centrale verwarming
Badkamervoorzieningen
Inloopdouche
Wastafel
Wastafelmeubel
Heeft een balkon
Ja
Heeft kabel-tv
Ja
Glasvezelaansluiting aanwezig
Ja
Telefoonaansluiting aanwezig
Ja
Heeft schuur/berging
Ja

Vereniging van Eigenaren

Ingeschreven bij de KvK
Ja
Jaarlijkse vergadering
Ja
Periodieke bijdrage
Ja
Reservefonds
Ja
Meer jaren onderhoudsplan
Ja
Onderhoudsverwachting
Ja
Opstal verzekering
Ja

Kadastrale gegevens

Kadastrale aanduiding
Roermond E 4776
Omvang
Appartementsrecht of complex
Eigendomsituatie
Eigen grond

Media

Video

Plattegronden

Brochure(s) en overige bijlagen

Open huis 31 oktober 19:30 - 20:30